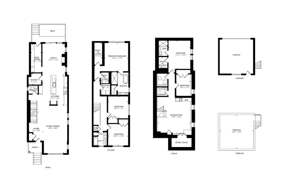
בשכונת Lake View האהובה בשיקגו, לקחנו את הנכס הזה והפכנו אותו לבית משפחתי יוקרתי עם כל הפינוקים. האזור הזה, שמציע את כל מה שצריך – בתי ספר מצוינים, גישה נוחה למרכז העיר, ותחושת קהילה חמה – היה המקום המושלם לפרויקט שלנו. ברגע שזיהינו את הפוטנציאל של הבית, ידענו שזה הולך להיות משהו מיוחד.
האתגר היה להפוך את הבית הזה לנכס משפחתי מרהיב, שיתאים לצרכים של משפחות מודרניות. השקענו בשיפוץ מקיף, שכלל הרחבה של שטחי המגורים, יצירת חללים פתוחים ושדרוג של כל העיצוב. כל פרט נבחר בקפידה כדי ליצור בית שיהיה גם פונקציונלי וגם מרהיב. התוצאה? נכס שנמכר במחיר מצוין! עוד הוכחה לכך שהגישה שלנו תמיד מצליחה להניב תוצאות מיידיות.
| מחיר קנייה | 500,000$ |
|---|---|
| מחיר מכירה | 1,699,000$ |
| משך הפרוייקט | 14 חודשים |



משך העסקה הצפוי: 12 חודשים
השקעות החל מ: $100,000